Property Management
Real Estate Development
949.833.5400

 
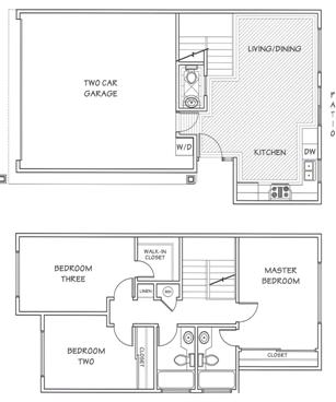
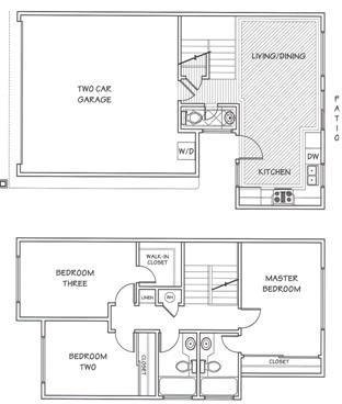
  Residential Project - Oak Crest Villas
 




 
     

Operon Group ©2015-2026 All Rights Reserved. Site by: Julian Designs